Beschrijving
In een rustige en kindvriendelijke woonwijk in Grubbenvorst ligt op korte afstand van een speeltuin, basisschool en het centrum, deze tussenwoning. De woning beschikt over een woonoppervlakte van ca. 121 m² en 4 slaapkamers. Een ideale gezinswoning op een fijne locatie.
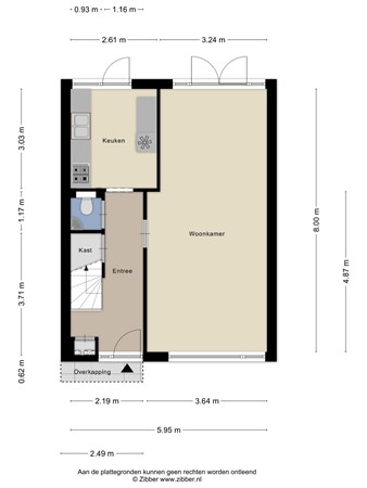
Entree
• Ca. 3,9 m²
• Toegang tot toilet (+/- 2 jaar oud), meterkast en trapopgang
• Toegang tot de keuken en de woonkamer
Woonkamer & keuken
• Ruime woonkamer met laminaat ca. 27.53 m²
• Eethoek met toegang tot de achtertuin
• Keuken met afzuigkap en gaskookplaat ca. 7.9 m²
Eerste verdieping
• Drie slaapkamers, allen voorzien van laminaat ca. 7.8 m², 13.2 m² en 11.9 m²
• Toilet (+/- 2 jaar oud)
• Badkamer met:
o Douchebak
o Wastafel
Zolder
• Bereikbaar via vaste trap
• Ruime zolder met laminaat (functioneert nu als slaapkamer) ca 15.4 m² met een overloop ca 9.7 m²
• Knieschotkasten voor extra bergruimte
• Wasmachine aansluiting
Tuin
• Achtertuin ca. 6m breed en 9.4m diep met achterom gelegen op westen
• Vrijstaande stenen berging ca 7,8 m²
Algemeen
• Bouwjaar 1973
• Perceeloppervlakte 135 m²
• Woonoppervlakte ca. 121 m²
• Vraagprijs: € 280.000 k.k.
• Houten kozijnen dubbelglas
• Cv-installatie +/- 2 jaar oud
• Glasvezelkabel aanwezig
• Kruipruimte en kelderkast
• Beschikbaar in overleg
Kortom: Een ruime woning in de leuke buurt van Grubbenvorst, met volop leefruimte. Ideaal voor gezinnen die comfortabel willen wonen in een rustige woonomgeving met het centrum op loopafstand.