Verkocht onder voorbehoud:Zandstraat 42a, 5913 TJ Venlo - Foto
Verkocht onder voorbehoud
+33

Zandstraat 42a 5913 TJ Venlo € 390.000,- k.k.

  • Woonhuis
  • 5 kamers
  • 4 slaapkamers
  • 1 badkamers
  • Bouwjaar 1957
  • 129 m² perceeloppervlakte
  • 121 m² gebruiksoppervlakte
  • D Energielabel D

Beschrijving

Nabij het centrum van Venlo, bevindt zich deze tussenwoning. Ideaal voor starters, maar ook zeer geschikt voor een gezin.

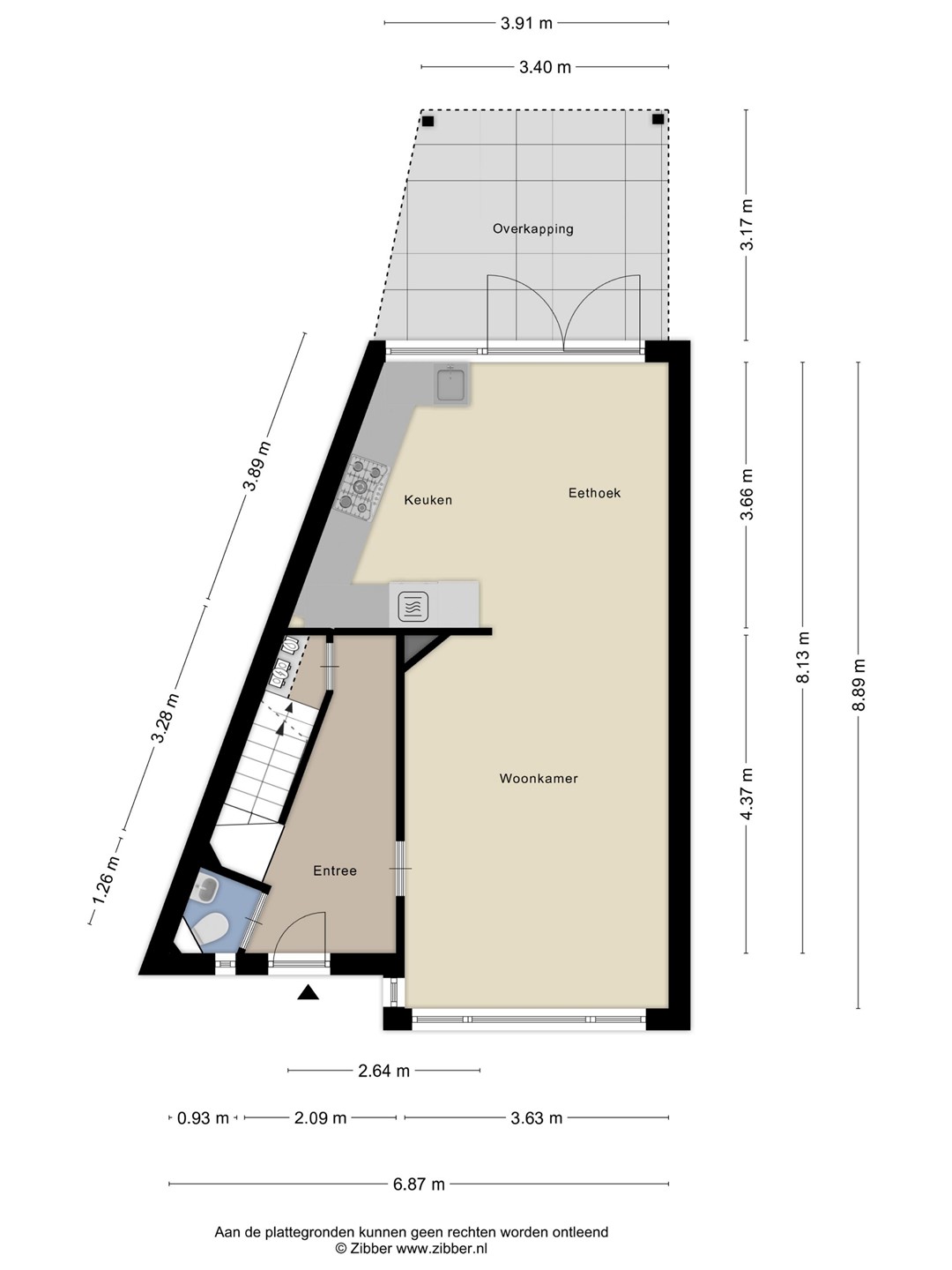
Indeling:

Hal:
• Toilet
• Toegang tot woonkamer
• Toegang tot kelder, hier bevindt zich de meterkast
• Trap naar de 1e verdieping

Woonkamer:
• Doorzon woonkamer
• Eikenstrokenparket
• Openslaande deuren naar de tuin
• Oppervlakte ca. 28 m2

Keuken:
• Open keuken
• Gaskookplaat
• Afzuigkap
• Oven
• Vaatwasser
• Koelkast
• Diepvries
• Oppervlakte ca. 7.5 m2

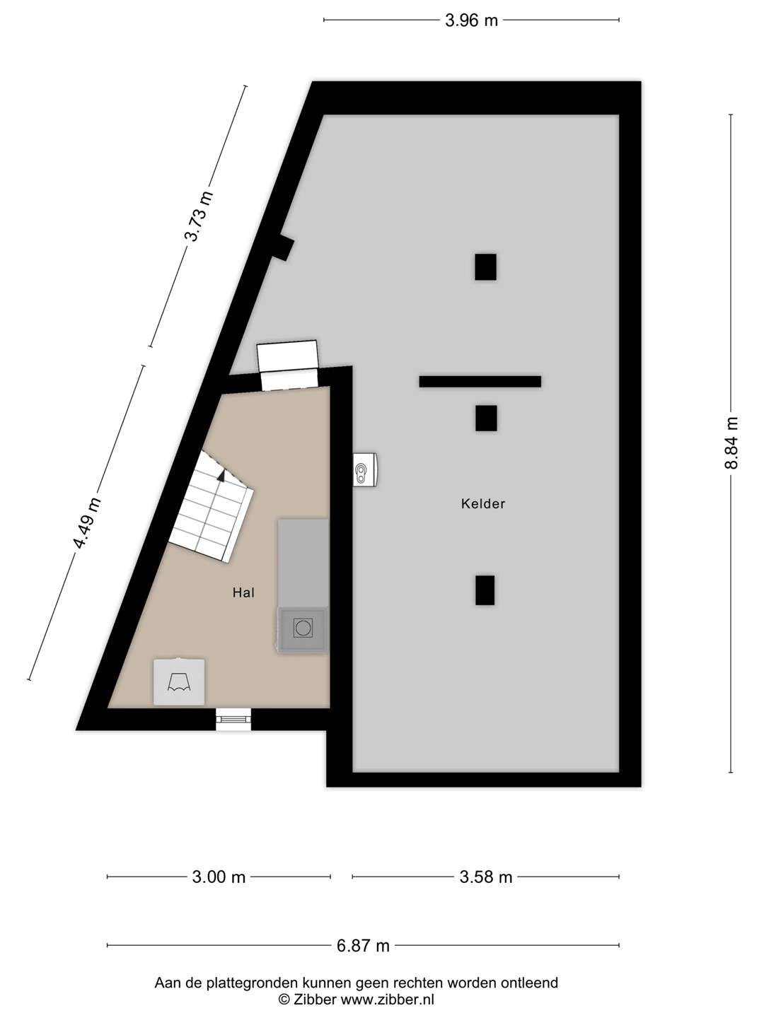
Kelder:
• Volledig onderkelderd
• Wasmachineaansluiting
• Let op: verschillende plafondhoogtes

Achtertuin:
• Gelegen op het zuiden
• Overdekt terras
• Achterom toegankelijk
• Losse berging

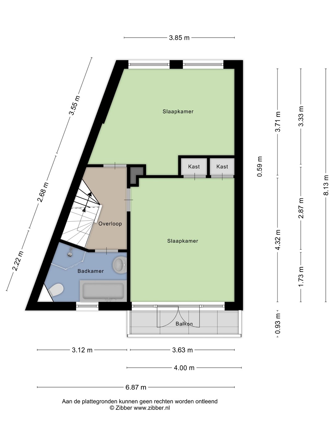
1e verdieping:
• Overloop verschaft toegang tot 2 slaapkamers en de badkamer en is voorzien van een vaste trap naar de zolderverdieping
• Slaapkamers zijn beide ca. 15.5 m2 groot
• Slaapkamer aan de voorzijde heeft openslaande deuren die toegang verschaffen tot het balkon
• Deze verdieping is geheel uitgerust met strokenparket
• Badkamer met ligbad, wastafel en toilet

Zolder:
• Op de overloop voorzien van een wastafel en vlizotrap naar de bergzolder
• 3e en 4e slaapkamer van ca. 9.5 en 11 m2, beide hebben ze een dakkapel
• Deze verdieping beschikt over een laminaatvloer

Algemeen:
• Woonoppervlakte 121.4 m2
• Overige inpandige ruimte 47.2 m2
• Gebouw gebonden buitenruimte 15.1 m2
• Externe buitenruimte 3.9 m2
• Perceeloppervlakte 129 m2
• Bouwjaar 1957
• Parkeerplekken voor vergunninghouders
• Nefit HRC ketel uit 2017
• Kunststof kozijnen met dubbelglas uit 2006
• Rolluiken op de slaapkamers, badkamer en in de woonkamer

Kaart

Kenmerken

Overdracht

Referentienummer
00061
Vraagprijs
€ 390.000,- k.k.
Elektra
€ 30,-
Gas
€ 126,-
Water
€ 15,-
Status
Verkocht onder voorbehoud
Aanvaarding
In overleg
Aangeboden sinds
Donderdag 2 oktober 2025
Laatste wijziging
Dinsdag 16 december 2025

Bouw

Type object
Woonhuis, eengezinswoning, tussenwoning
Soort bouw
Bestaande bouw
Bouwperiode
1957
Dakbedekking
Dakpannen
Type dak
Zadeldak
Isolatievormen
Dakisolatie
Dubbel glas
Muurisolatie

Oppervlaktes en inhoud

Perceeloppervlakte
129 m²
Woonoppervlakte
121,4 m²
Woonkameroppervlakte
28,4 m²
Keukenoppervlakte
7,5 m²
Inhoud
597 m³
Oppervlakte overige inpandige ruimten
47,2 m²
Oppervlakte externe bergruimte
3,9 m²
Oppervlakte gebouwgebonden buitenruimte
15,1 m²

Indeling

Aantal bouwlagen
3 (en 1 kelder)
Aantal kamers
5 (waarvan 4 slaapkamers)
Aantal badkamers
1

Tuin

Type
Achtertuin
Hoofdtuin
Ja
Oriëntering
Zuiden
Heeft een achterom
Ja
Staat
Normaal
Tuin 2 - Type
Voortuin
Tuin 2 - Oriëntering
Noorden
Tuin 2 - Staat
Normaal

Energieverbruik

Energielabel
D

CV ketel

CV ketel
HR-ketel
Warmtebron
Gas
Bouwjaar
2017
Combiketel
Ja
Eigendom
Eigendom

Uitrusting

Warm water
CV-ketel
Verwarmingssysteem
Centrale verwarming
Keukenvoorzieningen
Inbouwapparatuur
Badkamervoorzieningen
Douche
Ligbad
Toilet
Vloerverwarming
Wastafel
Heeft kabel-tv
Ja
Tuin aanwezig
Ja
Heeft rolluiken
Ja
Heeft schuur/berging
Ja

Kadastrale gegevens

Kadastrale aanduiding
Venlo D 4203
Perceeloppervlakte
129 m²
Omvang
Geheel perceel
Eigendomsituatie
Eigen grond

Brochure(s) en overige bijlagen

Zandstraat 42-a, 5913 TJ VENLO (2) Download