Nieuw in verkoop:Beukenlaan 11, 5802 CJ Venray - Foto
Nieuw in verkoop
+30

Beukenlaan 11 5802 CJ Venray € 325.000,- k.k.

  • Woonhuis
  • 5 kamers
  • 4 slaapkamers
  • 1 badkamers
  • Bouwjaar 1964
  • 207 m² perceeloppervlakte
  • 105 m² gebruiksoppervlakte
  • E Energielabel E

Beschrijving

In een rustige en kindvriendelijke woonwijk in Venray, op korte afstand van speeltuin, basisschool en kinderopvang, ligt deze verrassend ruime tussenwoning uit 1964 die volledig is onderkelderd, en beschikt over vier slaapkamers, eigen carport en een fijne achtertuin met overkapping. De woning heeft een woonoppervlakte van 105 m², een perceel van 207 m² en is gebouwd in 1964. Een ideale gezinswoning op een rustige locatie, op slechts tien minuten lopen van het centrum van Venray.

Entree
• Ca. 4.7 m²
• Toegang tot toilet, meterkast en trapopgang
• Toegang tot de keuken

Woonkamer & keuken
• Ruime woonkamer met laminaatvloer ca. 23 m²
• Eethoek met schuifpui naar de achtertuin ca. 16.3 m²
• Open keuken (2010) ca. 10 m² met:    
o Gaskookplaat    
o Afzuigkap     
o Vaatwasser     
o Combi oven magnetron (magnetronfunctie werkt niet)
• Doorlopend laminaat vanuit woonkamer naar keuken

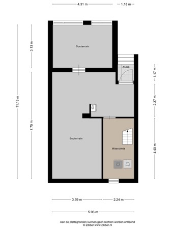
Kelder (volledig onderkelderd)
• Wasruimte ca. 10 m²
• Grote werk-/hobbyruimte ca. 35 m²
• Aparte kamer ca. 13.5 m²
• Toegang via keuken én via buitendeur
• Opstelling cv ketel (Vaillant ecoTEC, 2016)

Eerste verdieping
• Drie slaapkamers ca. 8.8 m², 10 m² (met inbouwkast) en 11 m²
• Badkamer (2010) ca. 7 m² met:     
o Douchebak     
o Wastafelmeubel     
o Toilet     
o Radiator
• Rolluiken aanwezig

Tuin
• Achtertuin met overkapping (2015)
• Mandelig pad achter de tuin met toegang tot de eigen carport
• Parkeren onder carport of in de straat

Algemeen
• Bouwjaar 1964
• Perceeloppervlakte 207 m²
• Woonoppervlakte 105 m²
• Overige inpandige ruimte (kelder) 59.6 m²
• Inhoud 582.96 m³
• Energielabel E – LET OP: Er is een nieuw energielabel in de maak
• Aluminium en kunststof kozijnen, grotendeels dubbel glas
• Rolluiken (2022) aan voorzijde begane grond, badkamer, slaapkamers
• Horren aanwezig
• Plat dak vervangen en geïsoleerd
• Glasvezelkabel aanwezig
• Beschikbaar vanaf 1 mei

Kortom: een ruime, verrassend praktische gezinswoning op een uitstekende locatie in Venray, met volop leefruimte, een volledige kelder, eigen carport en een fijne tuin. Ideaal voor gezinnen die comfortabel willen wonen in een rustige woonomgeving op loopafstand van het centrum.

Kaart

Kenmerken

Overdracht

Referentienummer
00096
Vraagprijs
€ 325.000,- k.k.
Elektra
€ 72,80
Gas
€ 108,60
Water
€ 17,-
Status
Nieuw in verkoop
Aanvaarding
In overleg
Aangeboden sinds
Vrijdag 30 januari 2026

Bouw

Type object
Woonhuis, eengezinswoning, tussenwoning
Soort bouw
Bestaande bouw
Bouwperiode
1964
Dakbedekking
Bitumen
Type dak
Platdak
Isolatievormen
Gedeeltelijk dubbel glas

Oppervlaktes en inhoud

Perceeloppervlakte
207 m²
Woonoppervlakte
105 m²
Woonkameroppervlakte
23 m²
Keukenoppervlakte
7,1 m²
Inhoud
583 m³
Oppervlakte overige inpandige ruimten
59,6 m²
Oppervlakte gebouwgebonden buitenruimte
2,3 m²

Indeling

Aantal bouwlagen
2 (en 1 kelder)
Aantal kamers
5 (waarvan 4 slaapkamers)
Aantal badkamers
1 (en 1 apart toilet)

Locatie

Ligging
Aan rustige weg
In woonwijk
Nabij school

Tuin

Type
Achtertuin
Hoofdtuin
Ja
Oriëntering
Noord west
Heeft een achterom
Ja
Staat
Normaal
Tuin 2 - Type
Voortuin
Tuin 2 - Oriëntering
Zuidoost
Tuin 2 - Staat
Normaal

Energieverbruik

Energielabel
E

CV ketel

CV ketel
Vaillant ecoTEC plus
Warmtebron
Gas
Bouwjaar
2016
Combiketel
Ja
Eigendom
Eigendom

Uitrusting

Aantal parkeerplaatsen
1
Aantal overdekte parkeerplaatsen
1
Warm water
CV-ketel
Verwarmingssysteem
Centrale verwarming
Keukenvoorzieningen
Inbouwapparatuur
Badkamervoorzieningen
Douche
Toilet
Wastafelmeubel
Parkeergelegenheid
Carport
Glasvezelaansluiting aanwezig
Ja
Tuin aanwezig
Ja
Heeft rolluiken
Ja
Heeft een schuifpui
Ja

Kadastrale gegevens

Kadastrale aanduiding
Venray L 891
Perceeloppervlakte
207 m²
Omvang
Geheel perceel
Eigendomsituatie
Eigen grond